
雙色注塑成型機轉盤式
適合于多種不同應用,且擁有眾多技術功能,給您帶來更高效的生產。
本機于活動模板裝有(you)往復180度旋轉之轉盤,可置放兩(liang)付雙色模具生產兩(liang)種不(bu)同(tong)物料之產品(pin)。
精(jing)心設計之(zhi)高(gao)效伺服(fu)驅動齒輪傳動結構,旋轉快速(su),平穩,停止位置準(zhun)確(que)。

適用范圍廣
精密穩定
轉盤高(gao)耐(nai)磨平面(mian),轉動時與(yu)模壁(bi)不接觸,摩擦(ca)力極小可減少因磨耗(hao)所造成的故障。
轉盤附有兩組中子及模具(ju)運(yun)水裝置可(ke)選擇油,水,氣,電,回路。
特別設(she)計轉盤支撐結(jie)構,有效防止裝模(mo)后轉盤前傾下垂。
轉(zhuan)盤(pan)完成停止(zhi)位置,在關(guan)模之(zhi)前盤(pan)面模具(ju)(ju)定位孔再(zai)確認以保護模具(ju)(ju)安全不受(shou)損。
可靠耐用
多樣性選擇
人性化設計
安全無憂

◆活(huo)動(dong)車壁(bi)中(zhong)心有(you)180度之轉(zhuan)動(dong)機(ji)構,帶(dai)動(dong)模(mo)具旋轉(zhuan)板轉(zhuan)動(dong),來生(sheng)產雙(shuang)色分(fen)明產品;
◆射出部分有兩支獨立料管組,可同時作射出成型產品;
◆機器動作可(ke)同時(shi)依產品需求(qiu),作托模(mo)再(zai)轉動模(mo)具旋(xuan)轉板,或先轉動模(mo)具旋(xuan)轉板再(zai)托模(mo)之彈(dan)性操作;
◆本機適合生產按鈕、把手、握柄……等產品。
雙色注塑成型(xing)機轉(zhuan)軸(zhou)式


采(cai)用高效的驅(qu)動技(ji)術,結合靈(ling)活多變的設置,滿(man)足您的所有需(xu)求。
射出部(bu)分有兩組獨立之(zhi)料管組,同步做射出動作,雙(shuang)色(se)一次(ci)成(cheng)型,可(ke)大幅縮短成(cheng)型周(zhou)期,增加經營利潤(run)。
兩套(tao)獨立(li)的(de)壓力/流量控制油路,分別控制兩套(tao)射出(chu)及頂出(chu)系統,可(ke)根(gen)據塑料(liao)制品(pin)的(de)特點(dian)靈活多變的(de)設置最優化的(de)注塑工(gong)藝,確(que)保(bao)注塑產品(pin)高生產量,低成型(xing)周期(qi),進而擁有更強的(de)市場競爭力。
特色(se)設計(ji)之單缸(gang)注(zhu)塑單元,儲料馬達直接驅動螺桿,可(ke)減少注(zhu)塑活塞桿油(you)封及(ji)機構磨耗,避免油(you)缸(gang)內漏,提升射(she)出(chu)效率,成型穩定性(xing)高(gao)。
注塑單元


高價值

高靈活

高效率
◆采用(yong)臺灣制(zhi)造先進的微(wei)電腦控制(zhi)器400兆高速CPU可(ke)搭(da)配半閉及全閉回路油(you)壓系統;
◆加上人性化圖形操作界面,線(xian)上曲線(xian)檢(jian)測(ce)功(gong)能及中(zhong)央網(wang)路(lu)連(lian)線(xian)管理(li);
◆豐(feng)富的SPC品(pin)質(zhi)管(guan)理界(jie)面(mian),利于生產(chan)高精度(du)產(chan)品(pin)為用戶提(ti)高加值利潤。
◆具備六段射出(chu),三段保壓(ya),二段松退及保壓(ya)位置切換控制等功能;
◆可以根據產品需要靈活調整,精(jing)確之射出終點及(ji)保壓(ya)及(ji)保壓(ya)位置(zhi)切(qie)換,實現高精(jing)密,高穩(wen)定(ding)性之射出性能;
◆射出采(cai)用(yong)線性電子(zi)尺,精度(du)達0.01mm,可準確控制射出行(xing)程,可記錄并同(tong)時顯示連續生產過程抽樣(yang)溫度(du)曲線,射出終點;
◆保壓切(qie)換點(dian)(dian),保壓完成點(dian)(dian)曲(qu)線(xian),并有歷史曲(qu)線(xian)比對功(gong)能,精度達0.1mm,系統(tong)穩定性一(yi)目了然;
◆六段PID溫度控制(zhi),精度可達(da)±1?,并(bing)具備(bei)溫度異常斷線(xian)警報(bao)及上下限(xian)制(zhi)設(she)立功能,可精確掌控料溫;
◆螺桿(gan)(gan)低溫起(qi)動保護,防(fang)止螺桿(gan)(gan)意外損(sun)傷,可調定時預(yu)熱(re)功(gong)(gong)能,實時保溫及料管自動加溫功(gong)(gong)能,自動洗料功(gong)(gong)能。
微電腦控制器

轉(zhuan)盤兩側增加夾緊裝置,有效防止(zhi)轉(zhuan)盤重心偏移。
獨特精(jing)準的(de)轉(zhuan)盤定準裝置(zhi),可確保鎖模平穩,防止模具損(sun)傷。
獨特(te)的哥林柱與機(ji)絞加強(qiang)型設計,有效吸(xi)收鎖模產(chan)生的剪應力,可延(yan)長(chang)機(ji)械使用(yong)壽命。
鎖(suo)模(mo)四段(duan)控制(zhi),頂出多功(gong)能(neng)控制(zhi),開鎖(suo)模(mo)頂出均采用線性電子尺傳感器,精密(mi)度達到(dao)0.01mm。
頂出控制可選擇振動頂出,頂出定位,多次(ci)頂出,壓力(li)和(he)速度(du)可由電腦設(she)定。
配(pei)有高精(jing)度低壓(ya)合模(mo)保護(hu),可直接通過監(jian)視器(qi)設定,低壓(ya)效果完美(mei)。
機(ji)絞(jiao)自動潤(run)滑(hua)系統采用電(dian)腦控(kong)制,潤(run)滑(hua)設定可在面(mian)板上直(zhi)接(jie)進行(xing)操作(zuo)監控(kong),并具有潤(run)滑(hua)失(shi)效(xiao)警報。
鎖模單元

●采用盟立微電腦控制(zhi)器,可選購(gou)閉回路油(you)壓控制(zhi)系統,展現極為穩定精準的性能。
●轉盤轉動時與(yu)模具(ju)不接觸,減少(shao)因磨耗所產生(sheng)的故障,且在開模前均作精(jing)準的定位確認以保護模具(ju)的安全(quan),此為我(wo)公司的獨(du)特設計。
●本機(ji)所采用的(de)新一代曲手(shou)夾模結構(gou)(gou),結合(he)箱型活動壁及(ji)(ji)高剛性固(gu)定壁結構(gou)(gou),精簡堅固(gu)的(de)設計,經有限(xian)元素分(fen)析變形量及(ji)(ji)應力分(fen)布(bu),確實達到(dao)高強(qiang)度且耐疲勞之特性,可確保(bao)成形品質及(ji)(ji)大柱壽命。
●本機所搭配之盟(meng)立(li)控制器(qi)采用(yong)32位元素(su)調整中央處理器(qi),系統反應速率(lv)高達1.20ms,可有效(xiao)提升機臺(tai)動作靈敏度及(ji)穩定性。
●兩組射單(dan)元均采用(yong)新式(shi)單(dan)缸(gang)射出結構(gou),射出與加料獨立運作(zuo)(zuo),可進行多項復合(he)射出動作(zuo)(zuo)。
●配置伺服省電回路系統,有效節約能源(yuan)。
超大(da)型雙色注塑成型機

省空間(jian):二(er)版式(shi)結構,較(jiao)傳統雙色機長度縮短25~30%。
耐用:FEA設計箱型模(mo)(mo)板結構,比普通機(ji)模(mo)(mo)板強(qiang)度提升(sheng)15%以上,模(mo)(mo)板變(bian)形(xing)少(shao),大柱(zhu)(zhu)較傳統機(ji)強(qiang)度加大20%,使用壽(shou)命(ming)長(chang),大柱(zhu)(zhu)與動模(mo)(mo)板不接觸,提升(sheng)大柱(zhu)(zhu)壽(shou)命(ming)。
精(jing)密:二兩板(ban)直壓(ya)式鎖模(mo)(mo),鎖模(mo)(mo)力(li)精(jing)準,重復精(jing)度高。
靈活:1.可(ke)配(pei)合客(ke)戶需求(qiu)加(jia)大托模(mo)行(xing)程(cheng)與托模(mo)力(li)。2.可(ke)配(pei)合客(ke)戶加(jia)大開(kai)模(mo)行(xing)程(cheng)。3.可(ke)配(pei)合客(ke)戶需求(qiu)靈活搭配(pei)射臺。
兩板雙色注塑機

YTC雙(shuang)色機系列產品規格表
| 項目 | 單位 | YT-450C | YT-700C | YT-1000C | YT-1300C | YT-1600C | YT-1900C | |||||||
| 射出單元 | 螺桿直徑 | mm | Φ45 | Φ50 | Φ50 | Φ55 | Φ55 | Φ70 | Φ60 | Φ70 | Φ60 | Φ75 | Φ70 | Φ80 |
| 理論射出容積 | cm3 | 397 | 491 | 530 | 641 | 665 | 1462 | 1102 | 1500 | 1102 | 1722 | 1500 | 2286 | |
| 射出量 | geam | 367 | 453 | 490 | 592 | 614 | 1351 | 1018 | 1386 | 1018 | 1591 | 1386 | 2112 | |
| ozs | 13.0 | 16.0 | 17.3 | 20.9 | 21.7 | 47.6 | 35.9 | 48.9 | 35.9 | 56.1 | 48.9 | 74.5 | ||
| 射膠壓力 | kg/cm2 | 3192 | 2586 | 2803 | 2317 | 2845 | 2210 | 1889 | 2623 | 1889 | 2285 | 2623 | 1815 | |
| 射出率 | cm3/sec | 142 | 175 | 162 | 196 | 249 | 403 | 200 | 324 | 246 | 667 | 260 | 353 | |
| 夾模單元 | 閉模力 | metric tons | 450 | 700 | 1000 | 1300 | 1600 | 1900 | ||||||
| 模板最大開距 | mm | 1400 | 1700 | 1900 | 2800 | 2900 | 3200 | |||||||
| 夾模行程 | mm | 600-1100 | 700-1350 | 800-1450 | 1000-1600 | 1400-2200 | 1400-2500 | |||||||
| 模厚 | mm | 300-800 | 350-1000 | 450-1100 | 600-1400 | 700-1500 | 700-1800 | |||||||
| 轉盤直徑 | mm | 1250 | 1530 | 1680 | 1930 | 2190 | 2350 | |||||||
| 料管中心距 | mm | 550 | 650 | 700 | 710 | 710 | 710 | |||||||
| 大柱內距 | mm | 960*830 | 1150*980 | 1260*1050 | 1440*1200 | 1550*1400 | 1760*1520 | |||||||
| 托模行程 | mm | 200 | 200 | 250 | 300 | 300 | 300 | |||||||
| 電氣單元 | 電機馬達 | HP(kw) | 80(60) | 80(60) | 100(74.6) | 120(90) | 130(100.7) | 240(179) | ||||||
| 溫度控制器 | (range)set | 2-(0-400℃)*5 | 2-(0-400℃)*5 | 2-(0-400℃)*5 | 2-(0-400℃)*5 | 2-(0-400℃)*5 | 2-(0-400℃)*5 | |||||||
| 電熱容量 | kw | 26 | 25 | 35 | 42 | 60 | 60 | |||||||
| 其他 | 機械尺寸 | mm | 6900*2200*2400 | 7300*2400*2500 | 8300*3200*2800 | 9600*3300*2800 | 10400*3500*3100 | 1200*3800*3100 | ||||||
| 機械重量 | netric ton | 19 | 25 | 35 | 42 | 60 | 95 | |||||||
| 最高系統壓力 | kg/cm2 | 170 | 170 | 170 | 170 | 170 | 170 | |||||||
技術參數
| 項目 | 單位 | YC-130 | YC-180 | |||||
| 射出單元 | 螺桿直徑 | mm | Φ24 | Φ26 | Φ30 | Φ26 | Φ30 | Φ34 |
| 理論射出容積 | cm3 | 55 | 65 | 86 | 77 | 102 | 132 | |
| 射出量 | gram | 51 | 60 | 80 | 71 | 95 | 122 | |
| ozs | 1.8 | 2.1 | 2.8 | 2.5 | 3.3 | 1.3 | ||
| 射膠壓力 | kg/cm2 | 2406 | 2050 | 1540 | 2547 | 1913 | 1490 | |
| 射出速度 | mm/s | 129 | 121 | |||||
| 射出率 | cm3/sec | 58 | 68 | 91 | 64 | 85 | 110 | |
| 螺桿轉速 | rpm | 280 | 250 | |||||
| 夾模單元 | 閉模力 | metric tons | 130 | 180 | ||||
| 夾模行程 | mm | 310 | 400 | |||||
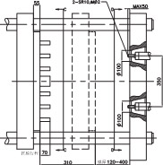
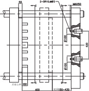
| 模厚 | mm | 120-400 | 160-430 | |||||
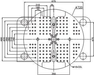
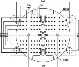
| 轉盤直徑 | mm | 720 | 830 | |||||
| 料管中心距 | mm | 350 | 420 | |||||
| 大柱內距 | mm | 600*400 | 710*440 | |||||
| 托模行程 | mm | 70 | 100 | |||||
| 電氣單元 | 電機馬達 | kw | 7.5+7.5 | 9.4+9.4 | ||||
| 溫度控制器 | (range)set | 2-(0-400℃)*5 | 2-(0-400℃)*5 | |||||
| 電熱容量 | kw | 7.2 | 8.8 | |||||
| 其他 | 機械尺寸 | mm | 5000*1100*1800 | 5584*1600*1840 | ||||
| 機械重量 | metric tons | 5 | 7 | |||||
| 最高系統壓力 | kg/cm2 | 140 | 140 | |||||
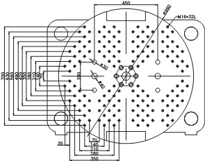
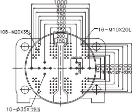
| 回轉盤正面尺寸 | ![]() | ![]() | ||||||
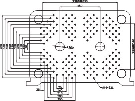
| 固定模板正面尺寸 | ![]() | ![]() | ||||||
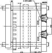
| 模板側面尺寸 | ![]() | ![]() | ||||||
技術參數
| 項目 | 單位 | YC-230 | YC-300 | |||||
| 射出單元 | 螺桿直徑 | mm | Φ30 | Φ34 | Φ40 | Φ34 | Φ40 | Φ45 |
| 理論射出容積 | cm3 | 113 | 145 | 201 | 159 | 220 | 278 | |
| 射出量 | gram | 104 | 134 | 186 | 147 | 203 | 257 | |
| ozs | 3.7 | 4.7 | 6.5 | 5.2 | 7.2 | 9.1 | ||
| 射膠壓力 | kg/cm2 | 2489 | 1938 | 1400 | 3052 | 2205 | 1742 | |
| 射出速度 | mm/s | 106 | 82 | |||||
| 射出率 | cm3/sec | 75 | 96 | 133 | 74 | 103 | 130 | |
| 螺桿轉速 | rpm | 250 | 250 | |||||
| 夾模單元 | 閉模力 | metric tons | 230 | 300 | ||||
| 夾模行程 | mm | 450 | 500 | |||||
| 模厚 | mm | 180-470 | 195-585 | |||||
| 轉盤直徑 | mm | 960 | 1070 | |||||
| 料管中心距 | mm | 450 | 500 | |||||
| 大柱內距 | mm | 830*510 | 910*570 | |||||
| 托模行程 | mm | 110 | 110 | |||||
| 電氣單元 | 電機馬達 | kw | 9.4+9.4 | 14.1+14.1 | ||||
| 溫度控制器 | (range)set | 2-(0-400℃)*5 | 2-(0-400℃)*5 | |||||
| 電熱容量 | kw | 8.8 | 13 | |||||
| 其他 | 機械尺寸 | mm | 6800*1800*2100 | 7000*1900*2200 | ||||
| 機械重量 | metric tons | 13 | 15 | |||||
| 最高系統壓力 | kg/cm2 | 140 | 140 | |||||
| 回轉盤正面尺寸 | ![]() | ![]() | ||||||
| 固定模板正面尺寸 | ![]() | ![]() | ||||||
| 模板側面尺寸 | ![]() | ![]() | ||||||
技術參數
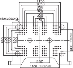
| 項目 | 單位 | YC-450 | YC-550 | YC-650 | |||||||
| 射出單元 | 螺桿直徑 | mm | Φ45 | Φ50 | Φ50 | Φ55 | Φ50 | Φ55 | |||
| 理論射出容積 | cm3 | 366 | 451 | 530 | 641 | 471 | 570 | ||||
| 射出量 | gram | 338 | 417 | 490 | 592 | 420 | 509 | ||||
| ozs | 11.9 | 14.7 | 17.3 | 20.9 | 14.8 | 17.9 | |||||
| 射膠壓力 | kg/cm2 | 2676 | 2167 | 2309 | 1908 | 2764 | 2284 | ||||
| 射出速度 | mm/s | 88 | 82 | 82 | |||||||
| 射出率 | cm3/sec | 140 | 172 | 162 | 196 | 160 | 194 | ||||
| 螺桿轉速 | rpm | 170 | 190 | ||||||||
| 夾模單元 | 閉模力 | metric tons | 450 | 550 | 650 | ||||||
| 夾模行程 | mm | 600 | 620 | 650 | |||||||
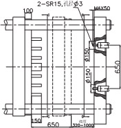
| 模厚 | mm | 200-700 | 320-900 | 350-1000 | |||||||
| 轉盤直徑 | mm | 1250 | 1450 | 150 | |||||||
| 料管中心距 | mm | 550 | 650 | 37 | |||||||
| 大柱內距 | mm | 1100*600 | 1200*715 | 1260*780 | |||||||
| 托模行程 | mm | 140 | 140 | 140 | |||||||
| 電氣單元 | 電機馬達 | kw | 21.2+21.2 | 30+30 | 30+30 | ||||||
| 溫度控制器 | (range)set | 2-(0-400℃)*5 | 2-(0-400℃)*5 | 2-(0-400℃)*5 | |||||||
| 電熱容量 | kw | 26 | 26 | 32 | |||||||
| 其他 | 機械尺寸 | mm | 7500*2000*2100 | 7850*2250*2200 | 8000*2250*2200 | ||||||
| 機械重量 | metric tons | 17.6 | 30 | 32 | |||||||
| 最高系統壓力 | kg/cm2 | 140 | 140 | 140 | |||||||
| 回轉盤正面尺寸 | ![]() | ![]() | ![]() | ||||||||
| 固定模板正面尺寸 | ![]() | ![]() | ![]() | ||||||||
| 模板側面尺寸 | ![]() | ![]() | ![]() | ||||||||
技術參數
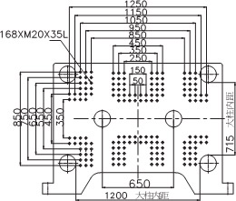
| 項目 | 單位 | YC-850 | YC-1000 | YC-1420 | |||||||
| 射出單元 | 螺桿直徑 | mm | Φ55 | Φ70 | Φ55 | Φ70 | Φ44 | Φ70 | Φ90 | ||
| 理論射出容積 | cm3 | 665 | 1500 | 665 | 1500 | 665 | 1500 | 2893 | |||
| 射出量 | gram | 614 | 1386 | 614 | 1386 | 614 | 1386 | 2673 | |||
| ozs | 21.7 | 48.9 | 21.7 | 48.9 | 21.7 | 48.9 | 94.3 | ||||
| 射膠壓力 | kg/cm2 | 2343 | 2210 | 2343 | 2271 | 2343 | 2210 | 1815 | |||
| 射出速度 | mm/s | 105 | 105 | 105 | |||||||
| 射出率 | cm3/sec | 249 | 403 | 249 | 403 | 249 | 403 | 667 | |||
| 螺桿轉速 | rpm | 160 | 180 | 160 | |||||||
| 夾模單元 | 閉模力 | metric tons | 850 | 1000 | 1420 | ||||||
| 夾模行程 | mm | 1000 | 1100 | 1300 | |||||||
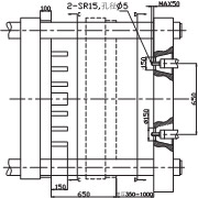
| 模厚 | mm | 400-1100 | 700-1300 | 700-1300 | |||||||
| 轉盤直徑 | mm | 1500 | 1600 | 1930 | |||||||
| 料管中心距 | mm | 700 | 710 | 710 | |||||||
| 大柱內距 | mm | 1060*1060 | 1130*1130 | 1330*1330 | |||||||
| 托模行程 | mm | 140 | 140 | 130 | |||||||
| 電氣單元 | 電機馬達 | kw | 31.4+31.4 | 45+45 | 60+60 | ||||||
| 溫度控制器 | (range)set | 2-(0-400℃)*5 | 2-(0-400℃)*5 | 2-(0-400℃)*5 | |||||||
| 電熱容量 | kw | 58 | 58.7 | 67.9 | |||||||
| 其他 | 機械尺寸 | mm | 11100*2250*2300 | 11200*2300*2500 | 11500*3050*2750 | ||||||
| 機械重量 | metric tons | 50 | 56 | 70 | |||||||
| 最高系統壓力 | kg/cm2 | 140 | 140 | 140 | |||||||
| 回轉盤正面尺寸 | ![]() | ![]() | ![]() | ||||||||
| 固定模板正面尺寸 | ![]() | ![]() | ![]() | ||||||||
| 模板側面尺寸 | ![]() | ![]() | ![]() | ||||||||
注(zhu):本產品參數射出量(liang)按聚苯(ben)乙烯比重1.05,假設(she)效(xiao)率0.88計算,因產品不斷研究(jiu)改良,設(she)計變更時,恕(shu)不另作通知。

>

































